工業鋁型材
Aluminum profile
Aluminum profile
聯系APAS / Contact us
- 地址:天津市西青經濟技術開發區賽達國際工業城A3-2.
- 郵箱:lxc@apas.com.cn
- 電話:022-87920088
- 傳真:請聯系網絡管理員
- 郵編:300385
- 咨詢熱線:13702119190(24小時服務熱線)
鋁合金線槽型材 / Wire slot
產品名稱 / Name
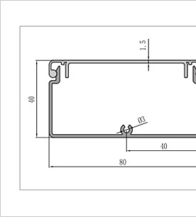
4080鋁合金線槽型材
產品描述 / Describe
4080鋁合金線槽型材主要適用于4080或8080鋁型材框架系統,線槽中心部位有攻絲孔,可進行螺紋孔加工處理,用于線槽端部封板的安裝;
022-87920088
可以根據需求進行設計加工,提供上門安裝服務;可以根據特殊需求進行鋁型材開模定制。
* 免費提供工業鋁型材選型手冊 →點擊咨詢
|
|
![]() ![]()
|
|
(4080鋁合金線槽型材二維參數)
|
|
規格型號
|
重量kg/m
|
慣性矩X(cm4)
|
慣性矩Y(cm4)
|
彎矩X(cm3)
|
彎矩Y(cm3)
|
訂貨編號
|
|
40×80
|
1.85
|
14.76
|
46.62
|
7.0
|
7.9
|
XC-4080
|
|
4080鋁合金線槽型材主要應用于4080或8080鋁型材框架結構,是根據鋁型材在電器系統中應用需求而開發的布線系統,需要經過簡單的加工處理,即可實現與鋁型材框架快速組裝; |
聯系APAS/ Contact us
天津艾普斯工業鋁型材股份有限公司
聯系電話:022-87920088
企業傳真:(避免惡意廣告)請聯系該企業網絡管理員
服務熱線:13702119190 (24小時服務熱線)
Q Q:534973906
企業郵箱: lxc@apas.com.cn
企業地址:天津市西青經濟技術開發區賽達國際工業城A3-2
聯系電話:022-87920088
企業傳真:(避免惡意廣告)請聯系該企業網絡管理員
服務熱線:13702119190 (24小時服務熱線)
Q Q:534973906
企業郵箱: lxc@apas.com.cn
企業地址:天津市西青經濟技術開發區賽達國際工業城A3-2
采購意向留言:* 為必填









.jpg)





QQ咨詢
電話聯系
聯系電話

在線留言
樣冊下載
